The Zero Nai Yang marks the next evolution in The Zero’s commitment to sustainable development, bringing boutique living to Phuket’s scenic northwestern shoreline. Nestled minutes from Nai Yang Beach and Sirinat National Park, its prime location offers peaceful coastal charm alongside city convenience, just a short drive from Phuket International Airport and essential amenities. The neighbourhood’s laid-back village atmosphere sets it apart from the island’s busier tourist centres, making it an ideal setting for residents and investors seeking relaxation and accessibility.
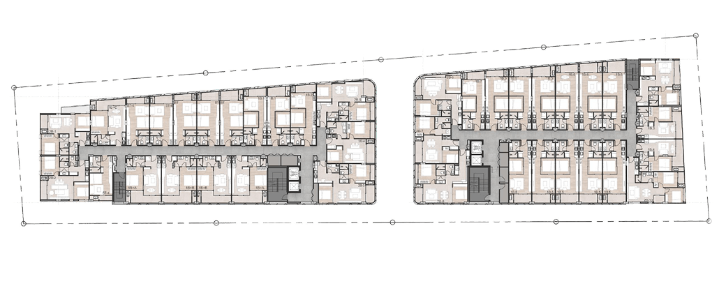
Developed in collaboration with leading design studio Tula Architects, The Zero Nai Yang combines contemporary architecture with nature-inspired landscaping and eco-friendly construction. Apartments range from studios to two bedrooms, each with private balconies or terraces and modern interiors. Residents enjoy premium amenities including an outdoor pool, padel courts, gym, spa, children’s play area, and 24-hour security. With efficient layouts, organic materials, and responsible community integration, The Zero Nai Yang offers lasting comfort and genuine sustainability—setting a new benchmark for environmentally conscious living in Phuket’s up-and-coming coastal zone.
Our investment model combines the advantage of off-plan pricing with the security of a proven, professionally managed rental programme. Partnering with an experienced hospitality operations team, we help you secure a lower entry price while unlocking projected capital growth of up to 25% upon completion.
Your property is placed in a fair and transparent 70/30 rental pool with similar unit types, ensuring equal opportunity and consistent returns. Income, projected at circa 11% ROI annually, is distributed every six months, with all aspects of marketing, guest check‑in, housekeeping, and maintenance handled for you.
For complete transparency, our intuitive owner app provides real-time access to occupancy, rental performance, and lets you instantly reserve dates for your personal use.
With limited units, you benefit from greater privacy, stronger rental demand, and enhanced long‑term value, making this a sound investment.

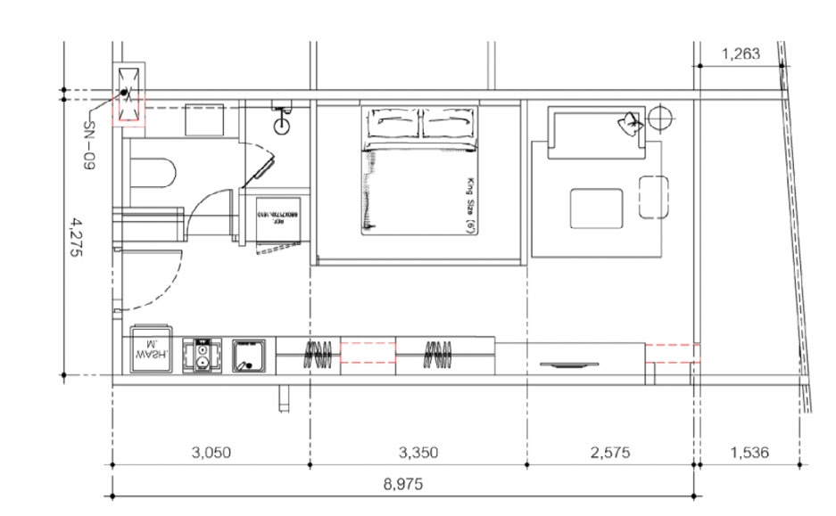
The most liquid entry-level unit, designed for high occupancy, strong short-term rental demand, and fast resale potential.

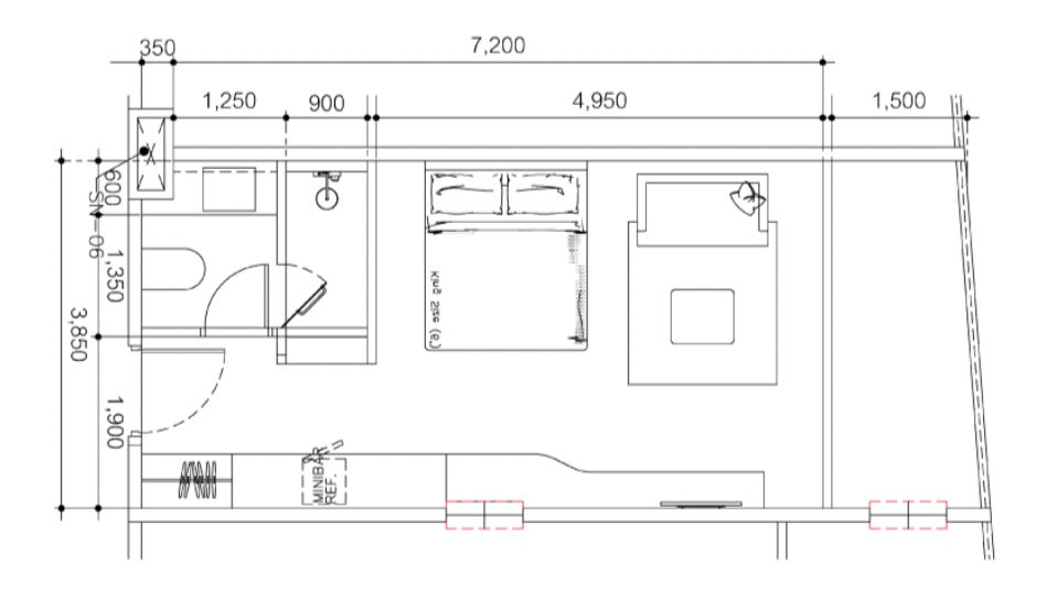
High-demand unit type offering strong rental liquidity, efficient layouts, and excellent short- and long-term yield potential.

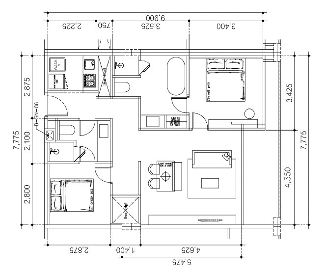
A versatile, family-friendly layout with broader tenant appeal, longer stays, and stable, predictable rental performance.
The Zero Nai Yang’s modern padel court, offers residents a dynamic way to stay active and social. Set within the development’s wellness-focused environment, the court provides a premium surface and professional-grade equipment ideal for all levels, from beginners to seasoned players. Originating in Acapulco, Mexico in 1969, padel was invented by Enrique Corcuera, who created the first enclosed court combining elements of tennis and squash. The sport was introduced to Spain in the 1970s and has since exploded in popularity, now played by over 25 million people in more than 90 countries worldwide. Padel is loved for its sociable, fast-paced doubles format and easy accessibility and is a lifestyle favourite from Europe to Asia. The Zero Nai Yang’s court is one of only ten certified padel courts currently available in Phuket.
Located on Phuket’s tranquil northwestern shoreline, Nai Yang has become one of the island’s most sought-after coastal communities, appealing to long-term residents and visitors drawn to its relaxed pace and natural beauty. Surrounded by the lush landscapes of Sirinat National Park and just minutes from Phuket International Airport, Nai Yang strikes an ideal balance between peaceful seclusion and everyday convenience, with easy access to schools, healthcare, shops, and dining.
Located on Phuket’s tranquil northwestern shoreline, Nai Yang has become one of the island’s most sought-after coastal communities, appealing to long-term residents and visitors drawn to its relaxed pace and natural beauty. Surrounded by the lush landscapes of Sirinat National Park and just minutes from Phuket International Airport, Nai Yang strikes an ideal balance between peaceful seclusion and everyday convenience, with easy access to schools, healthcare, shops, and dining.